Гостевой дом из бруса «Ну и Ну!!»

Выберите валюту:
  • RUB
  • TRY
  • USD
  • EUR
  • KZT
  • BYN

Описание

Название проекта – это тот возглас, который будут издавать ваши удивленные гости при виде места своего нового проживания, настолько данный дом впечатляет при знакомстве. Мощный, но изящный, добротный, но утонченно-возвышенный, простой, но с открытым сердцем, он оставляет самые яркие впечатления и после расставания.

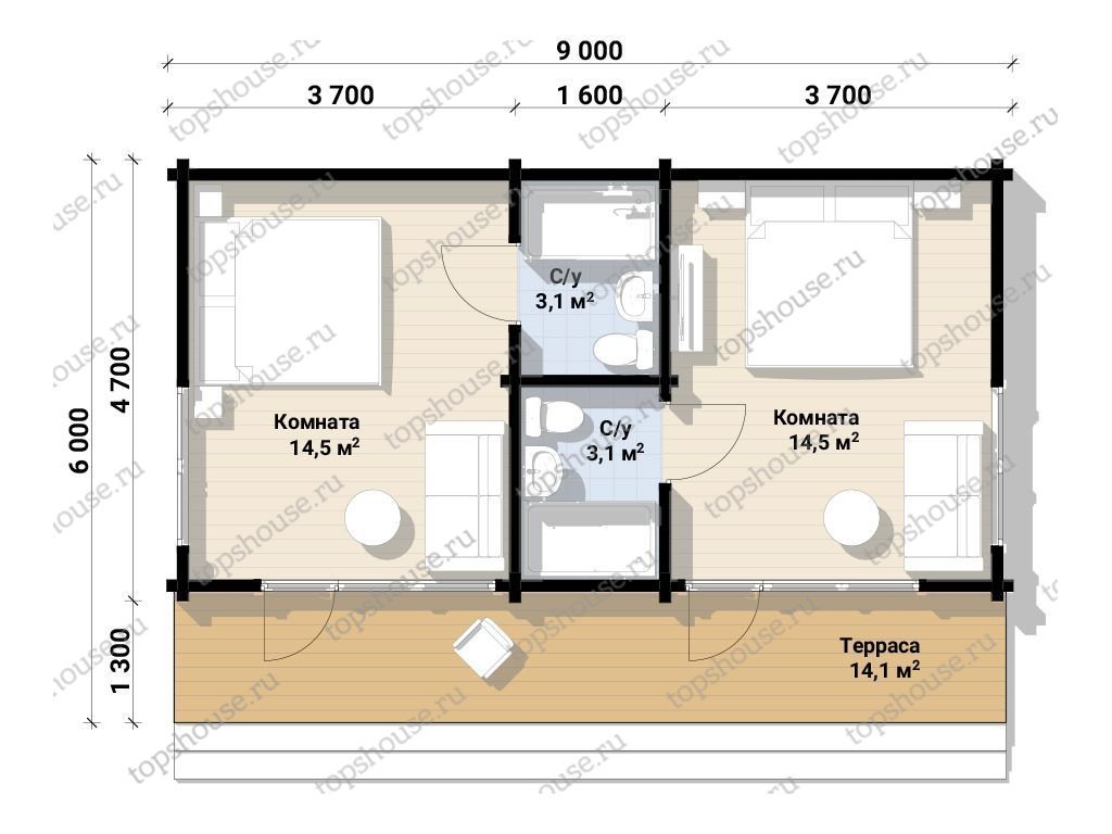
«Ну и ну!!» - это не только возглас. Это еще условное обозначение комнат гостевого дома, по типу «№ и №», или №1 и №2. Оба номера одинаковы, каждый располагает комнатой размером 14,5м² и отдельным санузлом (3,1м²), которые в игровом стиле можно назвать «Ню и Ню». Вся эта идиллия объединена общей террасой (14,1м²) с пирамидальным потолком, убегающим под кровлю. Изящество облика завершает обилие стекла, от пола до потолка, наполняющее пространство светом и свежестью.

Данный дом для гостей относится к классу выше среднего, ближе к элитному. В его изготовлении не используется брус тонких сечений, а применяется исключительно теплостойкий материал, поэтому проект будет выигрышно выглядеть в рекреационных зонах не только южных побережий, но и в средней полосе, а так же в северных широтах, являя образец гостеприимного представительства.

Напомним, что с каждым годом популярность гостевых эко-домов только увеличивается, особенно среди городских жителей, уставших от бетона, и качественные предложения из дерева никогда не простаивают. Именно поэтому, оценивая востребованность и экономический эффект, у владельцев таких гостиниц также нередко возникает возглас:

Ну и ну!!

Планировка

Гостевой дом из бруса «Ну и Ну!!». 13625

Спецификация

Фундамент

  • Подушка из песчано-цементной смеси толщиной 5–10 см.

  • Фундаментные блоки полнотелые, размером 200×200×400 мм.

  • Гидроизоляция из рубероида в 1 слой, укладывается между блоками и нижним венцом строения.


Обвязка (нижний венец)

  • Брус хвойных пород естественной сушки, сечение 100×150 мм.


Стены, фронтоны и перегородки

(высота стен ~2,3 м, 17 венцов)

  • Профилированный мини-брус камерной сушки 44×135 мм, влажность 12–14%.

  • Профилированный клеёный брус 60/80/120×135 мм, влажность 12–14%.

  • Сборка по технологии «тёплый угол» — замковое соединение, исключающее продувание.


Кровельная система

  • Стропильные балки из строганой доски камерной сушки (или клеёной балки). Сечение подбирается по проекту.

  • Внутренний настил под кровлю из имитации бруса толщиной 20 мм.

  • Кровельное покрытие — гибкая черепица ТЕХНОНИКОЛЬ, цвет по выбору заказчика.

  • Ветровые и торцевые планки из строганой доски камерной сушки.


Двери и окна

  • Входная дверь (если предусмотрена проектом): деревянная филёнчатая, из хвойных пород.

  • Межкомнатные двери (если предусмотрены проектом): деревянные филёнчатые, из хвойных пород.

  • Окна (если предусмотрены проектом): деревянные, из массива сосны, с одинарным остеклением.

  • Акция: ПВХ окна в подарок (уточняйте у менеджеров)


Отделочные элементы

  • Наличники — строганая доска камерной сушки из хвойных пород.

  • Плинтусы потолочный и напольный — деревянные.

 

  • 1 руб.
  • 10 000 руб.
  • 27 000 руб.
  • 154 000 руб.
  • 105 000 руб.
  • 60 000 руб.
  • 33 000 руб.
  • 324 000 руб.
  • 127 700 руб.
  • 117 450 руб.
  • 17 800 руб.
Гостевой дом из бруса «Ну и Ну!!». 256
Перепланировка
  • 5 000 руб.
Гостевой дом из бруса «Ну и Ну!!». 255
Инженерное оборудование
  • 11 200 руб.
  • 245 500 руб.
Гостевой дом из бруса «Ну и Ну!!». 254
Полы
  • 4 600 руб.
  • -1 800 руб.
  • 77 400 руб.
Гостевой дом из бруса «Ну и Ну!!». 253
Фундамент
  • 89 600 руб.
Гостевой дом из бруса «Ну и Ну!!». 293842429
Характеристики
  • Площадь строения 54 м2
  • Внешние размеры 6,0х9,0 м
  • Площадь веранды 13.1 м2
  • Этажность Один этаж
Варианты исполнения
  • от 1 380 700 руб. 1 453 400 руб.
  • от 2 140 050 руб. 2 252 750 руб.
  • от 2 333 350 руб. 2 456 200 руб.
  • от 2 940 850 руб. 3 095 700 руб.

Дополнительные опции

  • 1 руб.
  • 10 000 руб.
  • 27 000 руб.
  • 154 000 руб.
  • 105 000 руб.
  • 60 000 руб.
  • 33 000 руб.
  • 324 000 руб.
  • 127 700 руб.
  • 117 450 руб.
  • 17 800 руб.
  • Дополнительные опции
Перепланировка
  • 5 000 руб.
Инженерное оборудование
  • 11 200 руб.
  • 245 500 руб.
Полы
  • 4 600 руб.
  • -1 800 руб.
  • 77 400 руб.
Фундамент
  • 89 600 руб.

ООО "ТопсХаус, www:topshouse.ru, +7 (800) 777-42-08, Адреса офисов продаж
Стоимость с учетом выбранных опций без НДС
1
Оформление заяки на заказ
Выберите свой город
chevron_up
×
Подпишитесь на наш Telegram канал
×
Подпишитесь на наш канал Max